Premium-Standort: Wohn- und Geschäftshaus mit Ausbauoptionen nahe Dom und Prinzipalmarkt!
Ansprechpartner
Bernard H. Homann
Telefon: 00492514184870
Telefax: 00492514184890
» Homepage
» homann@homann-immobilien.com
» Anbieter Impressum
Eckdaten
- Kaufpreis
- 2.225.000 €
- Kaufpreis pro m²
- 4.988,79 €
- Mieteinnahmen (Ist)
- 81.962,64 €
- Mietvervielfältiger (Soll)
- 27.15
- Adresse
- 48143 Münster
Energiebedarfsausweis
- Endenergiebedarf
- 199,40 kWh/(m²*a)
- Befeuerungsart
- Gas
- Wesentlicher Energieträger
- GAS
- Baujahr (Energieausweis)
- 1989
- Energieeffizienzklasse
- F
- Gültig bis
- 01.01.2035
Beschreibung
Dieses vielseitige Wohn- und Geschäftshaus, das im Jahr 1952 errichtet wurde, besticht durch beste Innenstadtlage! Domplatz und Prinzipalmarkt sind in nur 3 Minuten fußläufig zu erreichen! Ein weiterer großer Pluspunkt dieser Immobilie ist das Erweiterungspotenzial durch die Aufstockung einer Etage!
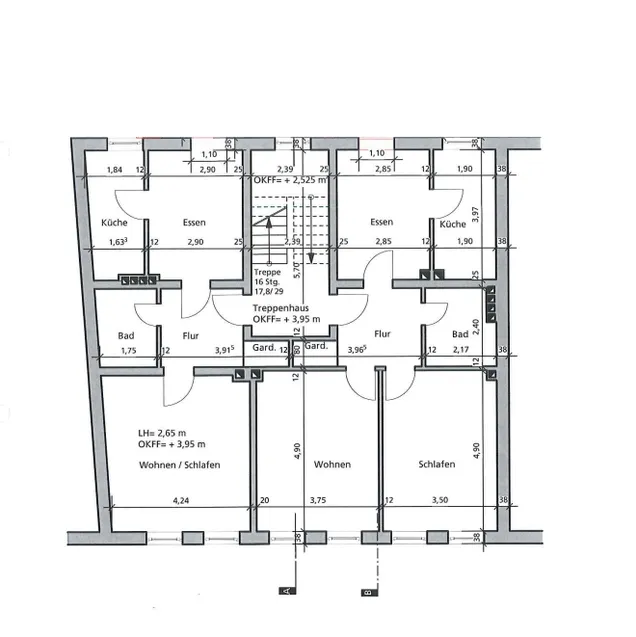
Die Immobilie beeindruckt mit einer großzügigen Gesamtwohnfläche von ca. 335 m², verteilt auf sechs individuell gestaltete Wohneinheiten. Die Wohnungen mit 2- bis 3-Zimmer-Grundrissen variieren in ihrer Größe zwischen 45 und 65 m² und erfreuen sich einer hohen Nachfrage auf dem Mietmarkt.
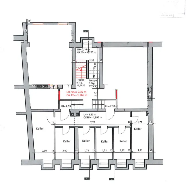
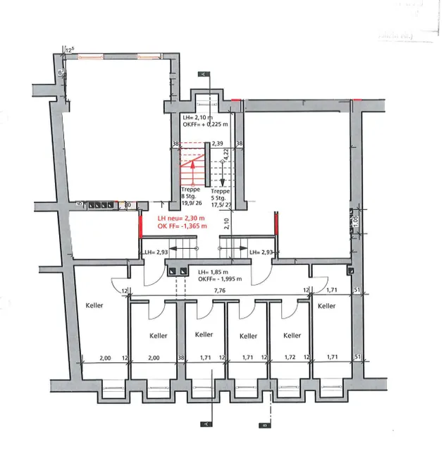
Besonders hervorzuheben ist das Dachgeschoss, das mit einer Ausbaureserve von ca. 100 m² hervorragende Erweiterungsmöglichkeiten für zusätzlichen Wohnraum bietet. Darüber hinaus lassen sich auch noch Balkone anbauen, um den Wert der Wohnungen zu steigern.
Das Erdgeschoss umfasst zudem eine attraktive Gewerbefläche von insgesamt 111 m², aufgeteilt in zwei Einheiten mit 51 m² und 60 m². Diese Flächen bieten vielseitige Nutzungsmöglichkeiten und profitieren von ihrer exponierten Lage.
Das Objekt generiert derzeit eine Jahresnettokaltmiete von 73.562,64 €, wobei eine Wohneinheit mit ca. 51 m² momentan bewusst leer steht. Dies ermöglicht eine unmittelbare Modernisierung oder eine Anpassung der Miete durch Neuvermietung. Bis 2026 laufen vier weitere Mietverträge aus, wodurch auch hier Potenziale für Modernisierungsmaßnahmen oder Mietanpassungen gegeben sind. Durch diese Optimierungen ist eine Jahres-Soll-Miete von ca. 85.632,00 € realistisch. Zusätzlich eröffnet die Ausbaureserve weiteres Einkommenspotenzial, um die Rendite weiter zu steigern.
Die Kombination aus zeitloser Architektur und einer zentralen, gefragten Lage macht diese Immobilie zu einer besonders attraktiven Investitionsmöglichkeit. Sie bietet eine solide Basis für nachhaltigen Erfolg am Immobilienmarkt und vereint langfristige Wertstabilität mit vielfältigen Entwicklungsperspektiven.
Sie kaufen provisionsfrei!
Sonstiges
Haben wir mit diesem überaus interessanten Angebot Ihr Interesse geweckt?
Gerne stellen wir Ihnen dieses einmalige Objekt in einem persönlichen Gespräch oder bei einer Besichtigung detaillierter vor.
Bitte beachten Sie, dass nur vollständig ausgefüllte Anfragen beantwortet werden können.
Ihr persönlicher Ansprechpartner:
Bernard H. Homann
Geschäftsführender Gesellschafter & Gründer
Tel.: 0251 / 418 48-70
E-Mail: homann@homann-immobilien.de
Ausstattungsbeschreibung
Besondere Merkmale auf einen Blick!
- Gas-Etagen-Heizung
- Linoleum Fußböden
- gepflegter Zustand
- Erweiterungspotential durch Aufstockung einer Etage+Spitzboden
- in nur 3 Minuten auf dem Domplatz (Wochenmarkt)
- in nur 4 Minuten auf dem Prinzipalmarkt
Der Bodenrichtwert für diesen Standort beträgt 2.900,00 €/m², so dass allein ein Anteil in Höhe von 1.102.000,00 € auf das Grundstück entfällt.
Lagebeschreibung
Dieses Mehrfamilienhaus befindet sich in einer der begehrtesten Lagen Münsters, direkt am Aegidiimarkt im Herzen der Stadt. Die zentrale und dennoch ruhige Umgebung vereint urbanen Lebensstil mit erstklassiger Erreichbarkeit zahlreicher Freizeit- und Erholungsmöglichkeiten. Die Promenade, der malerische Aasee und der Schlossgarten sind nur wenige hundert Meter entfernt und laden zu sportlichen Aktivitäten, Spaziergängen oder Entspannung im Grünen ein.
Auch die Universität Münster mit ihren vielfältigen Einrichtungen sowie sämtliche Bildungs- und Forschungsstandorte sind schnell und bequem erreichbar. Die Fußgängerzone mit ihren exklusiven Einkaufsmöglichkeiten, der historische Prinzipalmarkt, der Domplatz mit dem beliebten Wochenmarkt und der Hauptbahnhof liegen in fußläufiger Entfernung. Restaurants, Cafés und zahlreiche kulturelle Angebote in der Nachbarschaft tragen zusätzlich zur Attraktivität dieser Lage bei.
Dieses Mehrfamilienhaus bietet nicht nur komfortablen Wohnraum, sondern auch hervorragende Voraussetzungen für eine nachhaltige und renditestarke Investition. Münster gehört zu den wachstumsstärksten Städten Deutschlands, geprägt durch eine stetig steigende Bevölkerungszahl und eine hohe Nachfrage nach hochwertigem Wohnraum. Die zentrale Lage sowie die Nähe zur Universität machen dieses Objekt besonders attraktiv für Studierende, Berufstätige und Pendler.
Für Kapitalanleger eröffnet sich hier die Möglichkeit, von einer ausgezeichneten Vermietbarkeit und langfristigen Wertsteigerung zu profitieren. Die Kombination aus zentraler Lage, hervorragender Infrastruktur und der hohen Lebensqualität Münsters schafft optimale Bedingungen für ein zukunftssicheres Investment. Nutzen Sie diese Chance und investieren Sie in eine Immobilie, die durch ihre Lage, Vielseitigkeit und ihr Potenzial überzeugt!
Ausstattung
| Wohnfläche ca. 335 m² |
| Nutzfläche ca. 111 m² |
| Grundstücksfläche ca. 380 m² |
| vermietbare Fläche ca. 446 m² |
| Anzahl Etagen 4 |
| Anzahl Wohneinheiten 6 |
| Befeuerungsart Gas |
| Provisionspflichtig |
| Unterkellert |
| Verkaufstatus offen |
| Zustand gepflegt |
Zurück zu den Immobilienangeboten
Kontakt aufnehmen
Premium-Standort: Wohn- und Geschäftshaus mit Ausbauoptionen nahe Dom und Prinzipalmarkt!