Münster - Wilsberg-Krimi! Ein Ladenlokal, das Filmgeschichte schreibt!

Objekt-Nr. 2664 – Einzelhandel zum Kauf in Münster

Ansprechpartner

Bernard H. Homann

Telefon: 00492514184870
Telefax: 00492514184890

» Homepage
» homann@homann-immobilien.com
» Anbieter Impressum

» Kennenlernen

Eckdaten

Kaufpreis
499.000 €
Kaufpreis pro m²
7.920,63 €
Adresse
48143 Münster
Nutzfläche
ca. 93 m²
Gesamtfläche
ca. 63 m²

Beschreibung

Rarität und Liebhaberobjekt zugleich!

Die Ladenfläche, in der sich das bekannte Antiquariat Solder befindet – bekannt als zentrale Filmkulisse der ZDF-Kultserie *Wilsberg* – steht zum Verkauf. Seit 1997 dient dieser Ort als regelmäßiger Drehort der beliebten Krimireihe und gehört zu den bekanntesten Schauplätzen im deutschen Fernsehen.

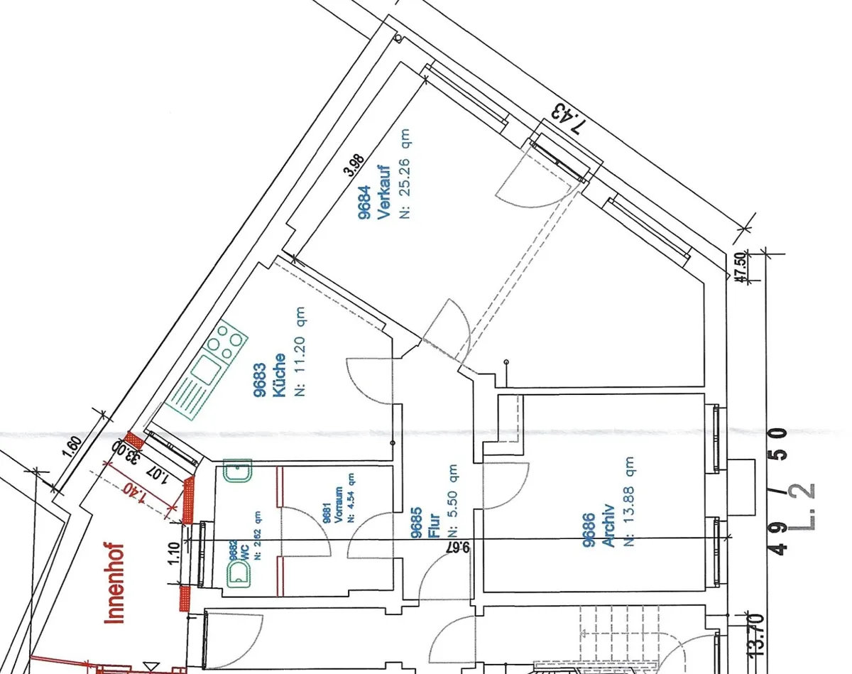
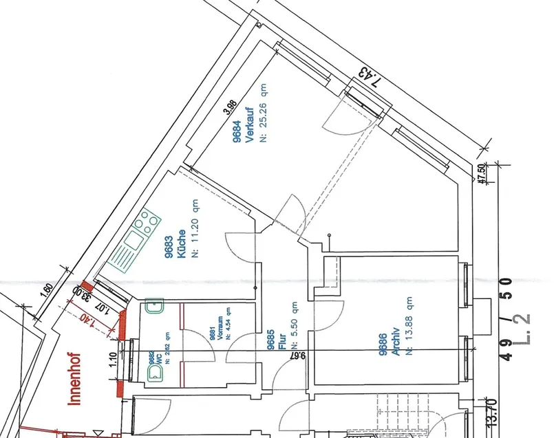
Das Ladenlokal mit einer Größe von ca. 63 m² Nutzfläche verteilt sich auf die attraktive Ladenfläche mit großen, attraktiven Fensterflächen, einen Archivraum, sanitäre Einrichtung sowie einen Aufenthaltsraum mit Zugang zum gemeinschaftlichen Innenhof!

Im Kellergeschoß befindet sich ein dazugehöriger Lagerraum sowie ein zusätzliches WC.

Mit dem Verkauf bietet sich eine außergewöhnliche Gelegenheit: Ein Drehort, an dem seit fast 30 Jahren eine der beliebtesten deutschen Krimiserien produziert wird, kann neuer Eigentum werden. Dieser Umstand verleiht der Immobilie nicht nur kulturellen Wert, sondern auch einen ganz besonderen Charme.

Sonstiges

Eine faszinierende Gelegenheit ein Teil der Filmgeschichte des Wilsberg-Krimis zu werden, indem man das Antiquariat Wilsberg erwirbt.
Wenn Sie weitere Informationen benötigen oder Fragen zur Kaufmöglichkeit haben, stehen wir Ihnen gerne zur Verfügung.

Ausstattungsbeschreibung

Hier ein paar Highlights auf den ersten Blick:

- Top Innenstadtlage!
- Attraktives Gebäude - berühmt durch Wilsberg-Krimi
- Große Schaufensterflächen
- Ansprechende Aufteilung der Räumlichkeiten
- Gut vermietet bis 31.03.2027 mit Option auf jährliche Verlängerung
- 2 Lagerräume im Keller ca. 25 m²
- 1 zusätzliches WC im Keller
- Bezaubernder Innenhof
- Wunderschöne Klinkerfassade mit Sandsteineinfassungen

.....usw.

Lagebeschreibung

In der wunderschönen Altstadt von Münster, unmittelbar angrenzend an das Domviertel, befindet sich das Antiquariat Wilsberg, welches durch die Dreharbeiten zum Wilsberg-Krimi Berühmtheit erlangte.

Profitieren Sie von der Lebendigkeit inmitten der Stadt!
Shoppen, Gastronomie, Museen, Theater, Wochenmarkt....und alles in ein paar Minuten fußläufig erreichbar - dies sind Anziehungspunkte für Touristen und Münsteraner selbst!

Münster, die grüne Westfalenmetropole, bietet mit all ihren Kultur- und Freizeitangeboten sowie zahlreichen Veranstaltungen im Laufe des Jahres viel Abwechslung und somit wird Münster zur Attraktion und zieht viele Besucher und Laufkundschaft in die Stadt!

Ausstattung

Lagerfläche ca. 25 m²
Verkaufsfläche ca. 63 m²
Zimmer 2
Provisionspflichtig
Verkaufstatus offen

Erfolg! Vielen Dank für Ihre Bewertung.

Fehler! Bitte füllen Sie alle Felder aus.