Dechaneiviertel direkte Nähe zum "Ententeich" Neubau - Beeindruckendes Penthouse!

Objekt-Nr. 2560 – Wohnung zum Kauf in Münster

Ansprechpartner

Bernard H. Homann

Telefon: 00492514184870
Telefax: 00492514184890

» info@homann-exclusives-wohnen.de
» Anbieter Impressum

» Kennenlernen

Eckdaten

Kaufpreis
2.450.000 €
Kaufpreis pro m²
9.959,35 €
Adresse
48145 Münster
Wohnfläche
ca. 246 m²
Zimmer
4

Beschreibung

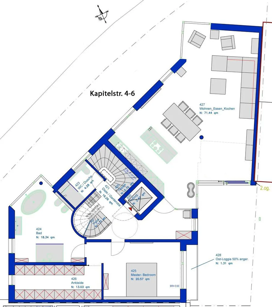
In begehrter Lage im Dechaneiviertel unweit des "Ententeichs" präsentiert sich dieses außergewöhnliche Neubau-Penthouse als stilvolle Kombination aus moderner Architektur, hochwertigster Ausstattung und großzügigem Raumgefühl. Das exklusive Penthouse erstreckt sich über das 2. Obergeschoss sowie das Dachgeschoss eines eleganten Neubaus und bietet eine Wohnfläche von ca. 246 m². Vom Untergeschoss bis ins Dachgeschoss ist jede Ebene bequem per Aufzug mit integrierter VIP-Schaltung direkt erreichbar.

Raumkonzept und Ausstattung:
Bereits beim Betreten des Penthouses eröffnet sich ein beeindruckendes Raumgefühl. Der großzügige Wohn-, Ess- und Kochbereich mit ca. 71 m² bildet das Herzstück der unteren Ebene. Großflächige Fensterfronten sorgen für lichtdurchflutete Räume und unterstreichen das moderne, offene Design. Raumhöhen von ca. 2,6 m im Wohnbereich bis hin zu fast 4 m im Dachgeschoss schaffen ein außergewöhnliches Wohnambiente.

Angrenzend an das Entrée befindet sich der Masterbereich mit Schlafzimmer, einer eleganten Loggia, einer ca. 13 m² großen Ankleide mit über 10 laufenden Metern Schrankfläche sowie einem luxuriösen Badezimmer mit Wellnesscharakter. Ein Tageslicht-Gäste-WC mit Dusche sowie eine Garderobe komplettieren diese Ebene.

Oberes Wohngeschoss – Atelier & weitere Rückzugsorte:
Das Dachgeschoss erreichen Sie bequem über die wohnungsinterne Treppe oder den Aufzug mit VIP-Zugang. Hier erwartet Sie ein lichtdurchflutetes Atelier, das sich ideal als Wohn- oder Arbeitsbereich eignet. Ergänzt wird das Raumangebot durch ein Studio sowie ein Gästezimmer und ein modernes Tageslichtbad mit Dusche.

Außenflächen – Lebensqualität unter freiem Himmel:
Eine ca. 40 m² große, teilweise überdachte Dachterrasse in sonniger Süd-Ost-Ausrichtung
Eine weitere Dachterrasse mit Westausrichtung für entspannte Abendstunden
Zwei zusätzliche Balkone, die das luxuriöse Wohnkonzept perfekt abrunden

Sonstiges

Dieses Penthouse vereint modernes Design, höchste Bauqualität und ein exklusives Wohngefühl in einer der begehrtesten Lagen der Stadt. Die Kombination aus großzügiger Raumgestaltung, luxuriöser Ausstattung, außergewöhnlicher Architektur und sonnigen Außenflächen macht diese Immobilie zu einem echten Unikat. Wer stilvolles Wohnen auf höchstem Niveau sucht – mit maximaler Privatsphäre, Komfort und urbaner Nähe zum "Grünen" – findet hier ein Zuhause der Extraklasse.
Sie kaufen provisionsfrei vom Bauträger!

Ausstattungsbeschreibung

Highlights auf einen Blick:

- Neubau-Penthouse mit ca. 246 m² Wohnfläche über zwei Ebenen
- Großzügiger Wohn-/Ess-/Kochbereich mit ca. 71 m²
- Lichtdurchflutet durch große Fensterflächen und Deckenhöhen bis ca. 4 m
- Exklusiver Masterbereich mit Ankleide (ca. 13 m²) und Wellnessbad ensuite
- Klimaanlage
- Entree mit Gäste-Duschbad mit Fenster
- Zusätzliches Atelier, Schlafzimmer, Gästezimmer und Tageslichtbad im DG
- Lift mit VIP-Schaltung vom Keller bis ins Dachgeschoss
- 2 Dachterrassen (ca. 40 m² Süd-Ost + Westausrichtung)
- 2 Balkone
- Hochwertige Ausstattung und durchdachtes Raumkonzept
- Ruhige Lage in der Dechaneistraße, fußläufig zum "Ententeich"
- KFW-55-Standard
- Geothermie-Heizsystem
- Aufwendige Elektro- und Sanitärinstallation
- Hochwertiges Parkett und Fliesen
- 3-Fachverglasung mit erhöhtem Schallschutz inkl. Raffstores
- Kontrollierte Wohnraumlüftung

Kaufpreisübersicht:

Penthouse: 2.450.000 €
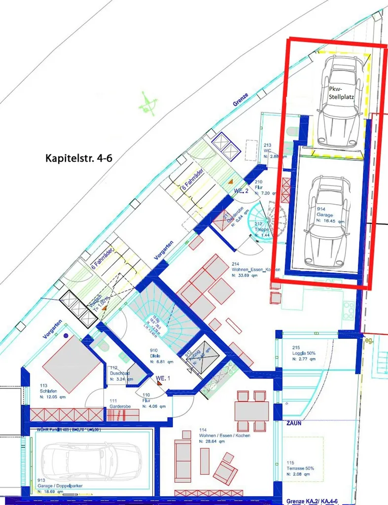
Garage + Stellplatz: 50.000 €
Gesamtkaufpreis: 2.500.000 €

Lagebeschreibung

WOHNEN IN MÜNSTERS BEGEHRTESTER WOHNLAGE!

In Mitten von stilvollen Stadtvillen und klassischen Häusern errichten wir für Sie ein Penthouse der Extraklasse.
Das Dechaneiviertel im Herzen von Münster war schon in den 30er-Jahren ein sehr begehrter Stadtteil. Dies kommt nicht von ungefähr! Denn diese sehr bevorzugte Wohnlage begeistert mit Zentralität und Ruhe. Von hier aus gelangen Sie binnen weniger Minuten ins Zentrum der Stadt, in den Wienburgpark oder an die Aaseepromenade.

Dank seiner gewachsenen Infrastruktur hat sich das Viertel zu einem Stadtteil von sehr hoher Wohnqualität entwickelt. Die anliegende Warendorfer Straße umfasst alles, was für ein qualitatives Leben notwendig ist. Neben Supermärkten und Cafés sowie Restaurants finden Sie hier ein attraktives Angebot an Fachgeschäften, wie z. B. Bio- und Feinkostläden, Fahrradläden sowie Post- und Bankfilialen. Ärzte, Apotheken, das St. Franziskushospital und das Hallenbad-Ost sind ebenfalls schnell erreichbar. Eine Grundschule ist in zwei Fußminuten, eine Realschule in zehn Fußminuten und ein Gymnasium in zehn Fahrradminuten zu erreichen. Die Internetgeschwindigkeit beträgt bis zu 500 MBit/s.

Für Entspannung außer Haus sorgt der nahegelegene und liebevoll genannte "Ententeich". Eine grüne Oase in Mitten von stilgetreuen Villen. Ebenfalls stehen Ihnen eine renommierte Tennisanlage und ein Reitstall in St. Mauritz zur Verfügung. Fünf Golfplätze erreichen Sie in 15 bis 30 Minuten.

Die Verkehrsanbindungen Ihres neuen Zuhauses sind ebenfalls ideal: So verleihen Ihnen die Autobahnanschlüsse an die A 1 und die A 43 auch überregional eine hervorragende Mobilität ebenso wie der nur 20-Autominuten entfernte Flughafen Münster-Osnabrück. Des Weiteren ist eine ideale Busanbindung auf der Warendorfer Straße gegeben.
Lassen Sie sich begeistern, von einem Zuhause in einer sensationellen Lage in welchem das Wohnen neu erlebt wird.

Ausstattung

Anzahl Badezimmer 3
Anzahl Balkone 2
Anzahl Etagen 4
Anzahl Schlafzimmer 2
Anzahl Stellplätze 2
Anzahl Terrassen 2
Baujahr 2025
Befeuerungsart Erdwärme mit Wärmepumpe
Fahrstuhl Personen
Heizungsart Fußbodenheizung
Kabel/Sat-TV
Stellplätze 1
Garagenanzahl 1
Stellplatzpreis (Garage) 50.000 €
Unterkellert
Verkaufstatus offen
Zustand Erstbezug

Erfolg! Vielen Dank für Ihre Bewertung.

Fehler! Bitte füllen Sie alle Felder aus.