Bürofläche mit 410 m² – sofort verfügbar in etabliertem Büro- und Gewerbekomplex

Objekt-Nr. 3376 – Büro/Praxis zur Miete in Münster

Ansprechpartner

Robert Fraude

Telefon: +49 251 97212 0
Telefax: +49 251 97212 22

» Homepage
» kontakt@dr-schorn.de
» Anbieter Impressum

» Kennenlernen

Eckdaten

Miete zzgl. NK
3.075 €
Miete pro m²
7,50 €
Nebenkosten
2,30 €
Miete inkl. NK
3.077,30 €
Adresse
48163 Münster

Beschreibung

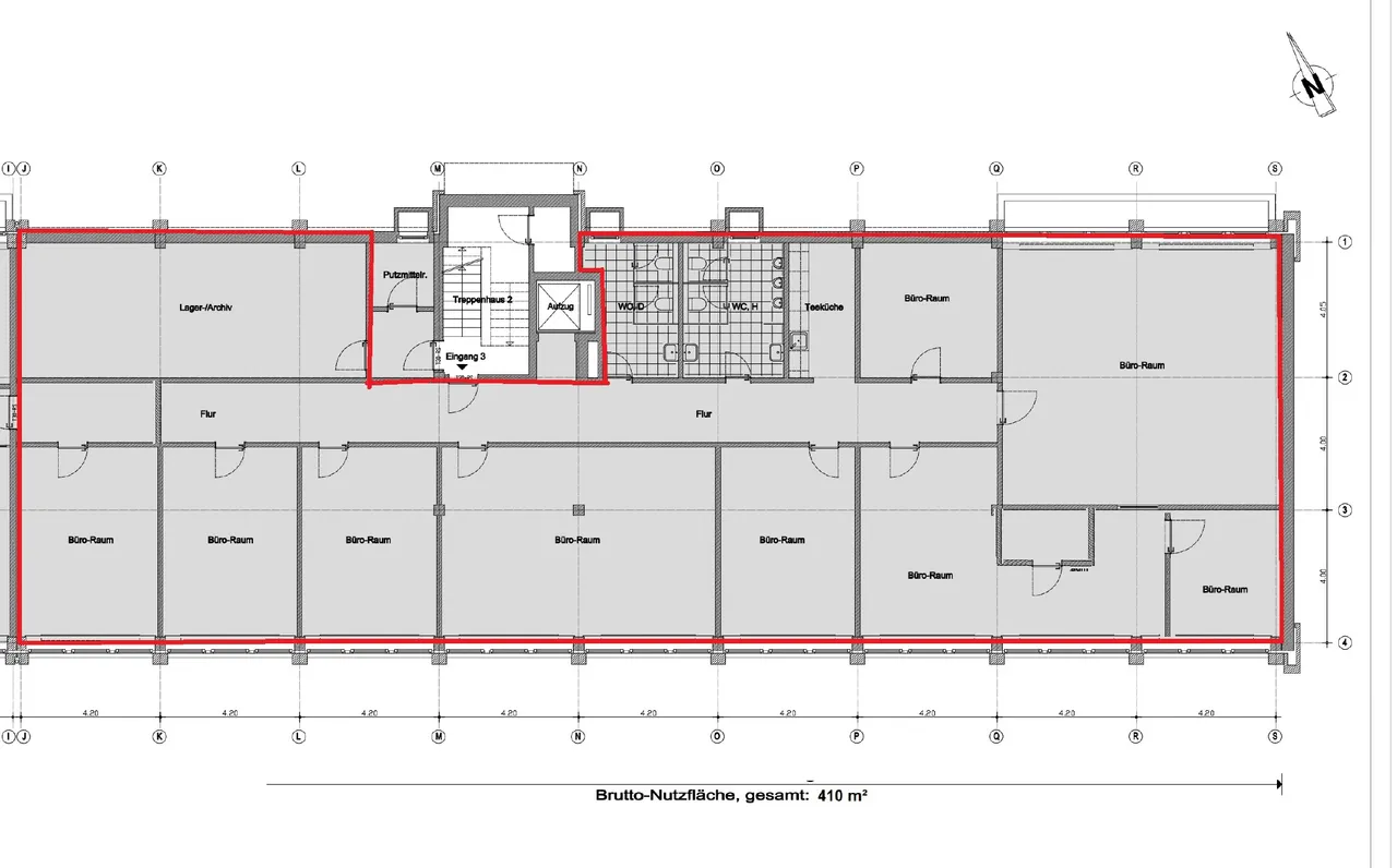
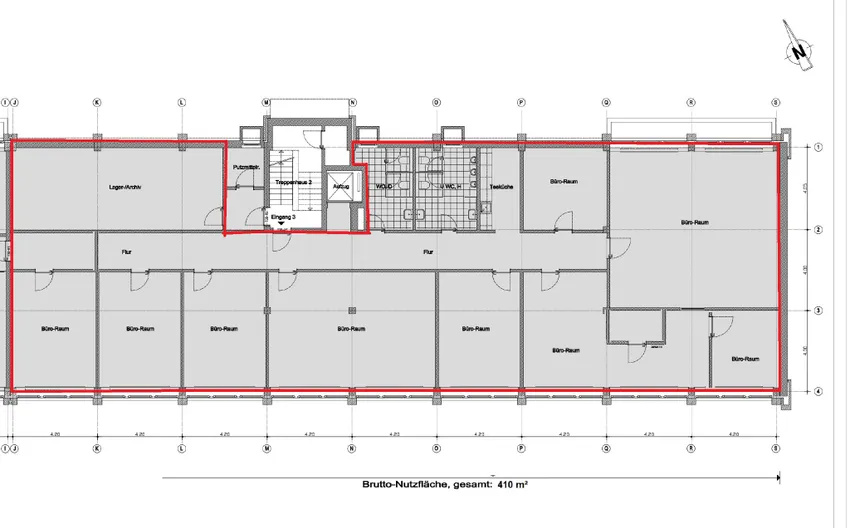
In einem gut vermieteten Bürokomplex mit Laboren, modernen Büros und Schulungsräumen steht ab sofort eine Einheit mit 410 m² zur Verfügung. Die Fläche überzeugt durch ihre flexible Raumaufteilung und eignet sich ideal für Unternehmen, die Wert auf eine professionelle Arbeitsumgebung in zentraler Lage legen.
Raumaufteilung:
•9 Büroräume in unterschiedlichen Größen
•1 Archiv-/Lagerräume
•1 Teeküche
•2 getrennte WC-Anlagen (Damen/Herren)
•Flurbereich mit eigenem Eingang und Aufzug

Ihre Vorteile:
•Sofort verfügbar
•Teil eines etablierten und stark nachgefragten Bürokomplexes
•Individuell anpassbare Nutzungsmöglichkeiten
•Stellplätze direkt am Haus (55,00 € / Monat)
•Glasfaseranschluss

Mietkonditionen:
•Grundmietzins: 7,50 € / m²
•Nebenkosten inkl. Heizung: 2,30 € / m²

Lage:
Die Immobilie bietet eine sehr gute Verkehrsanbindung an Hauptstraßen und den ÖPNV. Einkaufsmöglichkeiten sowie Gastronomie befinden sich in direkter Umgebung.

Der Energieausweis ist in Bearbeitung.

Sonstiges

Heizungsart: Zentralheizung
Befeuerung/Energieträger: Gas

Ausstattungsbeschreibung

Ausstattung
•Decken mit Akustikplatten für optimalen Schallschutz
•Glasfaseranschluss
•Isolierverglaste Kunststofffenster
•Kunststoffrollläden
•Fußbodenbelag: Teppichboden oder Vinyl
•2 separate WC-Anlagen (Damen/Herren)
•1 offene Küche mit Teeküchenbereich
•Personenaufzug
•Eigener Eingang zur Büroeinheit
•Stellplätze direkt am Haus (55,00 € pro Monat)

Lagebeschreibung

Die Büroeinheit befindet sich im gefragten Südwesten von Münster in unmittelbarer Nähe zur Weseler Straße – einem der wichtigsten Verkehrsknotenpunkte der Stadt. Das Stadtzentrum ist nur rund 5 km entfernt und in etwa zehn Minuten mit dem Auto bequem erreichbar.

Die Anbindung an den öffentlichen Nahverkehr ist ausgezeichnet: Mehrere Stadtbuslinien verkehren im 10-Minuten-Takt und gewährleisten eine schnelle Verbindung in alle Teile der Stadt.

Über den nahegelegenen Autobahnzubringer erreichen Sie in wenigen Minuten das Kreuz Münster-Süd. Von hier aus haben Sie direkten Anschluss an die A1 in Richtung Dortmund und Bremen sowie an die A43 in Richtung Recklinghausen und Ruhrgebiet.

Dank der sehr guten Infrastruktur mit Einkaufsmöglichkeiten, Gastronomie und Dienstleistern in direkter Umgebung bietet der Standort ideale Voraussetzungen für Mitarbeiter und Besucher.

Ausstattung

Gesamtfläche ca. 410 m²
Bürofläche ca. 410 m²
Anzahl Etagen 3
Barrierefrei
Befeuerungsart Gas
Lage im Objekt (Etage) 1
Fahrstuhl Personen
Heizungsart Zentralheizung
Provisionspflichtig
Räume veränderbar
verfügbar ab nach Vereinbarung

Erfolg! Vielen Dank für Ihre Bewertung.

Fehler! Bitte füllen Sie alle Felder aus.