Historisches Geschäfts- und Wohnhaus in Billerbeck – Ihr neues Investment !

Objekt-Nr. MH_3214_25 – Haus zum Kauf in Billerbeck

Ansprechpartner

Marlies Hessmann

Telefon: 004925549158785
Telefax: +49 251 972122-2

» m.hessmann@vbgn-immo.de
» Anbieter Impressum

» Kennenlernen

Eckdaten

Kaufpreis
585.000 €
Adresse
48727 Billerbeck
Wohnfläche
ca. 244 m²
Grundstücksfläche
ca. 251 m²

Energiebedarfsausweis

Endenergiebedarf
177,60 kWh/(m²*a)
Wesentlicher Energieträger
ERDGAS_LEICHT
Baujahr (Energieausweis)
1982
Energieeffizienzklasse
F
Gültig bis
22.05.2029
Energieausweis
2014

Beschreibung

Herzlich Willkommen in Ihrem neuen Investment, einem charmanten Geschäfts- und Wohnhaus im Herzen von Billerbeck. Diese einzigartige Immobilie kombiniert historische Eleganz mit moderner Ausstattung und bietet vielfältige Nutzungsmöglichkeiten. Ursprünglich als Ladenlokal mit Dachboden Anfang des 20. Jahrhunderts erbaut, wurde das Anwesen 1982 umfassend saniert und durch weitere Wohneinheiten erweitert.

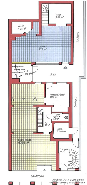
Mit einer Grundstücksfläche von 251 m² und einer Wohnfläche von insgesamt 244 m² bietet das Gebäude ausreichend Raum für gewerbliche und private Nutzungen. Im Erdgeschoss befindet sich ein großzügiges, ca. 95 m² großes Ladenlokal, das seit 2019 zuverlässig vermietet ist. Im ersten Obergeschoss erwartet Sie eine helle, ca. 100 m² große Wohneinheit, die 2021 vollständig renoviert wurde und aktuell vermietet ist. Das zweite Obergeschoss beherbergt zwei kompakte Wohneinheiten, jeweils ca. 45 m² groß, von denen eine derzeit noch auf einen neuen Mieter wartet. Im ausgebauten Dachgeschoss befindet sich eine weitere charmante Wohneinheit mit 58 m², die ebenfalls vermietet ist.

Die Immobilie wurde ab 1997 kontinuierlich renoviert, um den hohen Standard zu halten. Zu den durchgeführten Modernisierungen gehören teilweise neue Fenster, eine umfassende Renovierung des Ladenlokals inklusive neuer Schaufenster sowie die Erneuerung der Abwasser- und Elektroleitungen samt moderner Unterverteilungen. Weiterhin wurden teilweise neue Bäder installiert, das Dachgeschoss ausgebaut und isoliert, das Treppenhaus neu gestaltet und drei Küchen modernisiert. Eine neue Brennwert-Gaszentralheizung sorgt seit September 2021 für effiziente Wärme.

Auf dem nahezu komplett bebauten Grundstück gibt es für Mieter und Besucher eine praktische Infrastruktur. Es stehen Abstellräume für Fahrräder und Mülltonnen zur Verfügung. Diese sorgen für eine ordentliche Umgebung.

Kontaktieren Sie uns für weitere Informationen oder um einen Besichtigungstermin zu vereinbaren.

Sonstiges

Mit diesem Angebot bieten wir Ihnen das bezeichnete Objekt freibleibend und zugleich unsere Dienste als Makler an. Eine Weitergabe an Dritte ist unzulässig und verpflichtet zum Schadenersatz in Höhe der entgangenen Provision. Ein Maklervertrag kommt zustande, wenn Sie sich mit uns oder dem Eigentümer/Beauftragten direkt in Verbindung setzen. Die angegebene Provision zahlen Sie nur, wenn ein Vertrag (auch abweichend vom Angebot bzw. in anderer Form als ursprünglich vorgesehen – etwa Erwerb in der Zwangsversteigerung oder statt Kauf auch Miete über das angebotene Objekt) zustande kommt, selbst wenn wir beim Vertragsabschluss nicht mitwirken. Sie sind damit einverstanden, dass wir auch für Ihren Vertragspartner tätig sind.
Die obigen Informationen beruhen ausschließlich auf Angaben des Verkäufers und sind vom Käufer vor Vertragsabschluss zu überprüfen, da wir eine Haftung für Fehlinformationen ausschließen müssen.

Ausstattungsbeschreibung

Renovierungen und Modernisierung:
- Teilweise neue Fenster
- Umbau und Renovierung mit neuen Schaufenstern im Ladenlokal
- Maurerarbeiten und Putzarbeiten
- Neues Treppenhaus
- 3 Küchen
- Neue Abwasserleitungen
- Sämtliche Elektroleitungen mit neuen Unterverteilungen
- Teilweise neue Bäder
- Ausbau im Dachgeschoss mit Isolierung und teilweise neuer Eindeckung/ Dachrinnen
- 1 OG in 2021 vollständig renoviert
- Malerarbeiten und Bodenbeläge und neue Innentüren
- Frischwasserleitungen inkl. Hauswasseranschluss im Keller in 2021. ( Ersatz der veralteten Eigenwasseranlage)
- Neue Brennwert- Gaszentralheizung von September 2021

Lagebeschreibung

Billerbeck mit seinen fast 12.000 Einwohnern ist wunderbar inmitten der Baumberge gelegen. Hier finden Sie eine sehr gute Infrastruktur vor. Zahlreiche Geschäfte für den täglichen Bedarf, Ärzte, Apotheken, vier Kindergärten, zwei Grundschulen und eine Realschule, sowie Sehenswürdigkeiten, ein aktives Vereinsleben und zahlreiche Freizeitangebote.
Besichtigen Sie die Kolvenburg, die Johanniskirche oder das Billerbecker Wahrzeichen, den Ludgerus Dom, welche schon alle als Filmkulisse dienten. Der mächtige neugotische Ludgerus Dom und die St. Johanniskirche zählen in Westfalen zu den bedeutendsten Kunstdenkmälern aus spätromanischer Zeit.
In Billerbeck erreichen Sie alle Geschäfte für den täglichen Bedarf sowie Ärzte bequem mit dem Fahrrad oder auch zu Fuß. Ein Freibad sowie eine Freilichtbühne finden Sie ebenfalls vor Ort.
Eine sehr gute Bus- und Bahnverbindung bringt Sie nach Münster oder auch in die umliegenden Städte.
Diese Immobilie liegt zentral in der Altstadt auf der Einkaufsmeile in schöner Lage.

Käuferprovision zzgl. MwSt

5,95 %

Ausstattung

Baujahr 1982
Verkaufstatus offen
Zustand gepflegt

Erfolg! Vielen Dank für Ihre Bewertung.

Fehler! Bitte füllen Sie alle Felder aus.