Exklusive 2-Zimmer-Wohnung in barrierefreier Neubauanlage!

Objekt-Nr. IN_3207_25 – Wohnung zum Kauf in Ochtrup

Ansprechpartner

Ingrid Niesing

Telefon: 00492553728783
Telefax: 00492553728807

» i.niesing@vbgn-immobilien.de
» Anbieter Impressum

» Kennenlernen

Eckdaten

Kaufpreis
191.300 €
Adresse
48607 Ochtrup
Wohnfläche
ca. 45,50 m²
Zimmer
2

Beschreibung

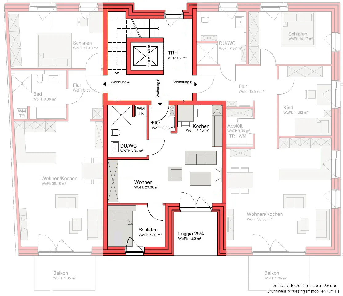
Willkommen in Ihrem neuen Zuhause! Die moderne Wohnung Nr. 5 im 1. Obergeschoss der hochwertigen Neubauanlage an der Gronauer Str. 57 in 48607 Ochtrup bietet Ihnen barrierefreies Wohnen auf höchstem Niveau. Mit einer durchdachten Raumaufteilung, erstklassiger Ausstattung und nachhaltiger Bauweise ist diese 2-Zimmer-Wohnung ideal für Paare, kleine Familien oder Senioren, die Komfort und Qualität schätzen.

Highlights:
- Wohnfläche: Ca. 45 m², intelligent aufgeteilt
- Zimmer: 2 (Wohn-/Essbereich mit offener Küche, Schlafzimmer)
- Barrierefreiheit: Ebenerdiger Zugang, breite Türen, bodenebene Dusche
- Loggia: frische Luft und eine schöne Aussicht
- Energieeffizienz: Luft-Wasser-Wärmepumpe, Fußbodenheizung, Dreifachverglasung

Ausstattung:
- Bodenbeläge: Vinyl-Design, stilvolle Fliesen in Flur und Bad
- Bad: Tageslichtbad, bodenebene Dusche, hochwertige Armaturen
- Fenster: Dreifachverglasung, elektrische Rollläden
- Elektro: Zahlreiche Steckdosen, Highspeed-Internetanschlüsse
- Türen: Elegante Innentüren, sichere Eingangstür

Gemeinschaftsbereiche:
- Aufzug: Barrierefreier Personenaufzug
- Treppenhaus: Rutschhemmende Fliesen, Bewegungsmelder-Beleuchtung
- Außenbereich: Grünflächen, Parkplätze, Fahrrad- und Müllabstellplatz
- PKW-Stellplatz: Stellplatz mit Wallbox-Vorbereitung
- Satellitenanlage: Zentrale SAT-Schüssel

Nachhaltigkeit & Zukunftssicherheit:
Die Bauweise entspricht höchsten energetischen Standards (Energieausweis vorhanden, Blower-Door-Test durchgeführt). Die Vorbereitung für eine Photovoltaikanlage und die moderne Haustechnik sichern langfristig niedrige Betriebskosten. Bauleistungs- und Bauherrenhaftpflichtversicherungen garantieren Sicherheit bis zur Fertigstellung.

Bezugsfertig ab Winter 2026/2027. Entdecken Sie Ihr neues Zuhause mit all seinen Annehmlichkeiten!

Sonstiges

Mit diesem Angebot bieten wir Ihnen das bezeichnete Objekt freibleibend und zugleich unsere Dienste als Makler an. Eine Weitergabe an Dritte ist unzulässig und verpflichtet zum Schadenersatz in Höhe der entgangenen Provision. Ein Maklervertrag kommt zustande, wenn Sie sich mit uns oder dem Eigentümer/Beauftragten direkt in Verbindung setzen. Die angegebene Provision zahlen Sie nur, wenn ein Vertrag (auch abweichend vom Angebot bzw. in anderer Form als ursprünglich vorgesehen – etwa Erwerb in der Zwangsversteigerung oder statt Kauf auch Miete über das angebotene Objekt) zustande kommt, selbst wenn wir beim Vertragsabschluss nicht mitwirken. Sie sind damit einverstanden, dass wir auch für Ihren Vertragspartner tätig sind.
Die obigen Informationen beruhen ausschließlich auf Angaben des Verkäufers und sind vom Käufer vor Vertragsabschluss zu überprüfen, da wir eine Haftung für Fehlinformationen ausschließen müssen.

Ausstattungsbeschreibung

- Spielplatz
- eigener PKW-Stellplatz
- Fahrradgarage
- Aufzug
- Lüftungsanlage
- Fußbodenheizung
- Neubau
- Loggia

Lagebeschreibung

Der Ort Ochtrup:
Ochtrup liegt im Länderdreieck Nordrhein-Westfalen, Niederlande und Niedersachsen und im Schnittpunkt der Bundesautobahnen 31 und 30, sowie der B 54/B 403 und befindet sich in der Nähe des Dortmund-Ems-Kanals Rheine und des Kanalhafens Enschede. Der nächste internationale Flughafen befindet sich in Greven (Flughafen Münster/Osnabrück). Der Bahnhof Ochtrup liegt an der Bahnstrecke Münster/Enschede.
Ochtrup besteht heute aus der Stadt, mehreren Bauernschaften und zwei weiteren Dörfern. Sie finden hier neben den Sehenswürdigkeiten, den Parks, den vielen Sportmöglichkeiten, ausreichend Kindergärten und alle Schulformen. Ärzte, das DOC und Einkaufsmöglichkeiten für den täglichen Bedarf befinden sich in unmittelbarer Nähe.

Ausstattung

Anzahl Badezimmer 1
Anzahl Schlafzimmer 1
Verkaufstatus offen

Erfolg! Vielen Dank für Ihre Bewertung.

Fehler! Bitte füllen Sie alle Felder aus.