Drensteinfurt: 200 m² Repräsentative Büro-oder Praxisfläche
Ansprechpartner
Ute Volkmar
Telefon: 0251 41848-36
Telefax: 0251 41848-90
» Homepage
» u.volkmar@homann-immobilien.de
» Anbieter Impressum
Eckdaten
- Miete zzgl. NK
- 1.400 €
- Nebenkosten
- 400 €
- Miete inkl. NK
- 1.800 €
- Kaution
- 2.800 €
- Adresse
- 48317 Drensteinfurt
Energieverbrauchsausweis
- Endenergieverbrauch
- Endenergieverbrauch-Strom
- 15,40 kWh/(m²*a)
- Endenergieverbrauch-Wärme
- 76,10 kWh/(m²*a)
- Energieverbrauch inkl. Warmwasser
- Ja
- Wesentlicher Energieträger
- GAS
- Baujahr (Energieausweis)
- 2002
- Gültig bis
- 14.04.2026
- Energieausweis
- 2014
Beschreibung
Die hier angebotene Bürofläche befindet sich in einem hochwertigen ISO-Gebäude im modernen Industrie-Style von Baujahr 2002, welches auf einem 1850m² großen Grundstück im Gewerbegebiet Viehfeld in Drensteinfurt liegt.
Diese Fläche bietet Ihrer Firma einen repräsentativen Unternehmenssitz!
Die Räumlichkeiten lassen sich individuell nach Ihren Anforderungen aufteilen
und gestalten. Die Flächen bieten Ihnen je nach Bedarf abgeschlossene Einzelbüro-oder Großraumbürolösungen, oder auch offene Bereiche für New Work-Projekte, Tagungen oder Empfänge. Kunden-WC, Personalraum mit Küche und ein Serverraum stehen für Ihr Vorhaben ebenfalls zur Verfügung.
Die technische Ausstattung lässt keine Wünsche offen. Neben der EDV-Verkabelung über Bodentanks, dem Beleuchtungssystem und der abgestimmten Raum-Akustik, stehen auch ein Glasfaseranschluss und eine Alarmanlage zur Verfügung. Behandlungsräume ließen sich auf Wunsch individuell mit Wasseranschlüssen versorgen.
Vor dem Gebäude steht eine gepflasterte Parkplatzanlage für Kunden und Mitarbeiter zur Verfügung.
Ihre Ansprechpartnerin für diese Bürofläche ist Ute Volkmar
E-Mail: u.volkmar@homann-immobilien.de oder Handy: 0163-1709658
Sonstiges
Möchten Sie Ihre Gewerbe zukünftig in repräsentativen Räumlichkeiten ausüben?
Dann nehmen Sie Kontakt mit unserer Immobilienberaterin Ute Volkmar auf!
Tel. 0251-41848-36 oder E-Mail: u.volkmar@homann-immobilien.de
Ausstattungsbeschreibung
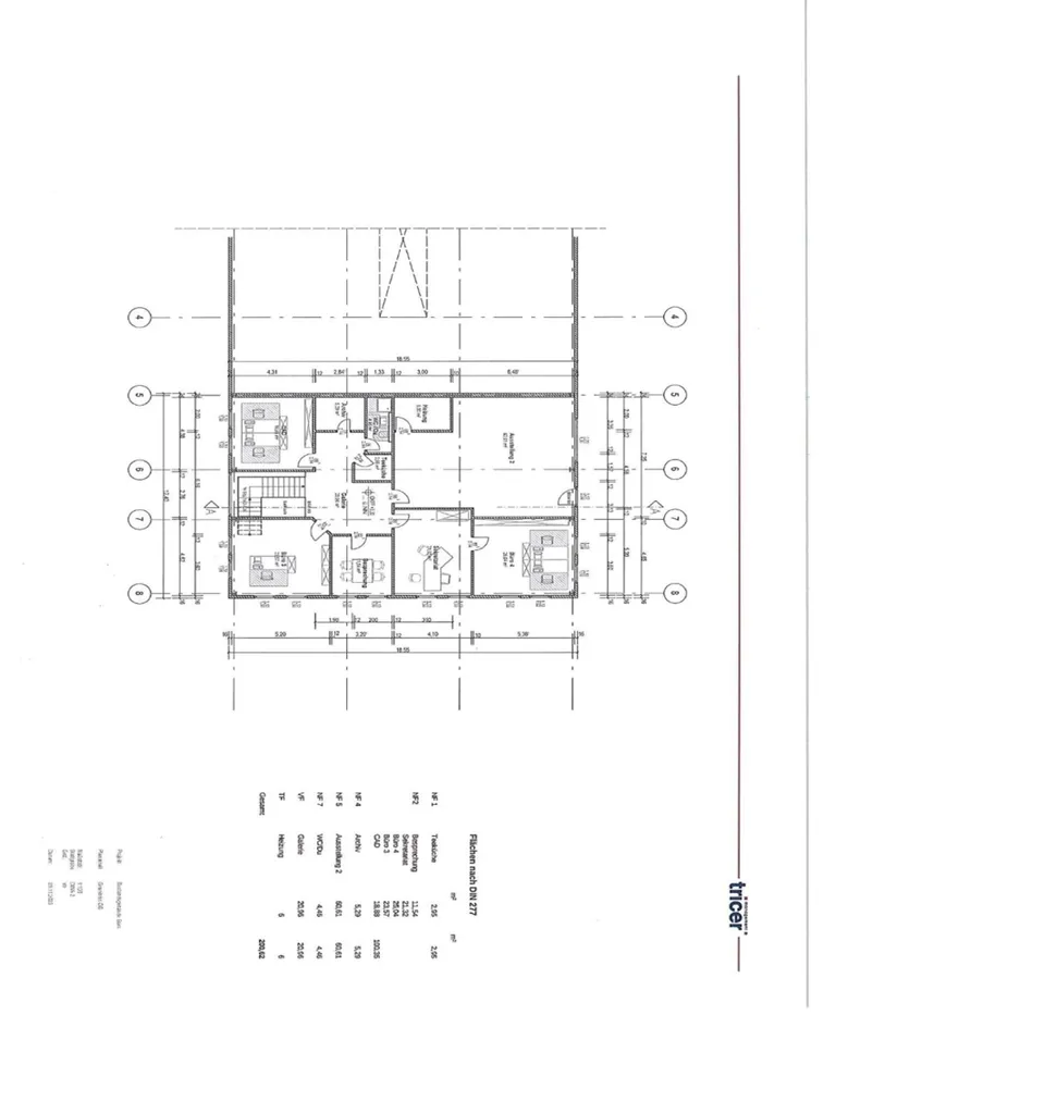
Bürotrakt im 1. OG: ca. 200 m²
mit 5 Einzelbüros, 1 gr. Tagungsraum
inkl. Personalraum + WC + Küche, Serverraum
inkl. Bodentanks für die Elektrik u. EDV-Verkabelung
Deckenbeleuchtungssysteme
Glasfaseranschluss
Alarmanlage
Gasheizung: neu in 2019
Außengelände: gepflasterte Parkplatzanlage für Kunden+ Mitarbeiter und ansprechender Bepflanzung
Lagebeschreibung
Die hier angebotene Bürofläche liegt im Gewerbe-Immobilie Viehfeld von Drensteinfurt, westlich der Bahnlinie Münster-Hamm
Als Vorort von Münster liegt Drensteinfurt im westlichen Teil des Kreises Warendorf und grenzt an die Städte bzw. Gemeinden Münster, Sendenhorst, Ahlen, Hamm und Ascheberg. Die Stadt hat ca. 16.000 Einwohner
Die Verkehrsanbindung ist über die B58 und über die nahegelegenen Autobahn A1 Zufahrten Ascheberg oder Hamm-Bockum-Hövel in Richtung Münster oder ins Ruhrgebiet gesichert, aber auch in Richtung Lüdinghausen/Haltern oder in Richtung Warendorf/Ahlen/Beckum.
Der Drensteinfurter Bahnhof liegt im 2 KM-Radius. Die Züge verkehren zwei- bis dreimal stündlich Richtung Münster, ins Ruhrgebiet und Richtung Paderborn. Die Innenstadt von Münster erreichen Sie z. B. in 20 Minuten.
Flughäfen:
Sowohl der Flughafen Münster-Osnabrück als auch der Flughafen Dortmund sind mit dem PKW in 30-45 Minuten zu erreichen.
Güterverkehr Zentrum und Hafen befinden sich im Nachbarort Hamm.
Von dem Grundstück aus sind auch die Innenstadt, Einkaufsmöglichkeiten, Nahversorgung, ärztliche Versorgung, Verwaltung, Schulzentrum, Kirchen und das Freibad in einem Radius von höchstens 1000-2000 m zum Objekt schnell zu erreichen.
Ausstattung
| Gesamtfläche ca. 200 m² |
| Bürofläche ca. 200 m² |
| Zimmer 5 |
| Anzahl Tagungsräume 1 |
| Baujahr 2002 |
| Verkaufstatus offen |
| Zustand gepflegt |
Zurück zu den Immobilienangeboten
Kontakt aufnehmen
Drensteinfurt: 200 m² Repräsentative Büro-oder Praxisfläche