Außergewöhnlicher großzügiger Bungalow zur Miete

Objekt-Nr. 3649 – Haus zur Miete in Ostbevern

Ansprechpartner

Robert Fraude

Telefon: +49 251 97212 0
Telefax: +49 251 97212 22

» Homepage
» kontakt@dr-schorn.de
» Anbieter Impressum

» Kennenlernen

Eckdaten

Miete zzgl. NK
Preis auf Anfrage
Adresse
48346 Ostbevern
Wohnfläche
ca. 164 m²
Grundstücksfläche
ca. 541 m²
Zimmer
5

Beschreibung

Sie suchen ein familienfreundliches und naturnahes Zuhause mit klarer Architektur, viel Raum und moderner Technik?
Dieser außergewöhnliche Neubau Bungalow zur Miete bietet Ihnen genau das. Bezugsfertig ab Juli 2026.

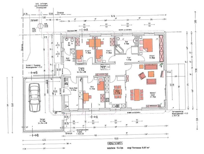
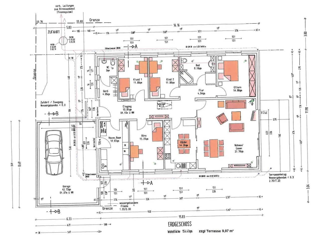
Großzügiges Wohnen auf einer Ebene
Sie betreten das Haus über einen rund 2 Meter breiten Flur. Die Deckenhöhe von ca. 2,80 m schafft ein spürbar offenes Raumgefühl.

Das Wohn- und Esszimmer mit ca. 38 m² bildet den Mittelpunkt des Hauses.
Große Fensterflächen sorgen für viel Tageslicht. Die halboffene Küche mit ca. 14 m² ist über eine satinierte Schiebetür mit dem Wohnbereich verbunden. Damit genießen Sie eine flexible Raumgestaltung. Offen und weitläufig oder ruhig und separiert.

Die Raumaufteilung im Überblick:
•Wohn und Esszimmer ca. 38 m²
•Küche ca. 14 m²
•Zwei Schlafzimmer mit je ca. 15 m²
•Zwei weitere Zimmer mit je ca. 12 m², ideal als Kinderzimmer, Homeoffice oder Gästezimmer
•Badezimmer ca. 9 m² mit Dusche und Badewanne
•Gäste WC ca. 3 m²
•Hauswirtschaftsraum ca. 13 m²
•Dachboden mit Stauraum für Koffer, Dekoration und saisonale Gegenstände
•Terrasse mit ca. 20 m² erweitert Ihren Wohnraum nach außen

Komfort bis in die Doppelgarage
Die Doppelgarage mit ca. 43 m² bietet ausreichend Platz für zwei Fahrzeuge und zusätzliche Abstellmöglichkeiten. Das Funktor erleichtert Ihnen den Alltag.
Ein besonderes Plus: Sie gelangen von der Garage direkt in den Hauswirtschaftsraum. So bleiben Einkäufe und Alltagswege kurz und geschützt.

Alles liegt auf einer Ebene. Keine Treppen. Klare Wege. Ideal für Familien oder für komfortables Wohnen mit viel Platz.
Dieser Bungalow verbindet moderne Technik, großzügige Architektur und eine attraktive Lage. Wenn Sie Wert auf Qualität, Effizienz und Raum legen, finden Sie hier Ihr neues Zuhause zur Miete.
Der Energieausweis ist in Auftrag

Sonstiges

Baujahr: 2026
Heizungsart: Wärmepumpe

Ausstattungsbeschreibung

Moderne Energietechnik für niedrige Nebenkosten
Hier profitieren Sie von zeitgemäßer, effizienter Ausstattung:
• Wärmepumpe
• 23 kWh Photovoltaikanlage mit 11 kWh Stromspeicher
• Fußbodenheizung im gesamten Haus
• 3-fach verglaste Fenster
• Elektrische Rollläden
• Automatische Lüftung in allen Räumen

Der erzeugte Strom der Photovoltaikanlage kann kostengünstig erworben werden, wodurch Sie Ihre laufenden Energiekosten reduzieren.

Lagebeschreibung

Lage im Neubaugebiet von Ostbevern
Sie wohnen in einem modernen, familienfreundlichen Neubaugebiet in Ostbevern. Die Anbindung über die Teuto-Bahn ermöglicht Ihnen eine schnelle und bequeme Zugverbindung nach Münster und Osnabrück. Damit eignet sich die Lage auch ideal für Pendler.

Ausstattung

Alter Neubau
Anzahl Badezimmer 1
Anzahl Etagen 1
Anzahl Schlafzimmer 4
Anzahl Stellplätze 2
Barrierefrei
Baujahr 2026
Gäste-WC
Heizungsart Zentralheizung
Seniorengerecht
Garagenanzahl 1
Stellplatzmiete (Garage) 200 €
Stellplatzart Garage
verfügbar ab Juli 2026
Zustand Erstbezug

Erfolg! Vielen Dank für Ihre Bewertung.

Fehler! Bitte füllen Sie alle Felder aus.